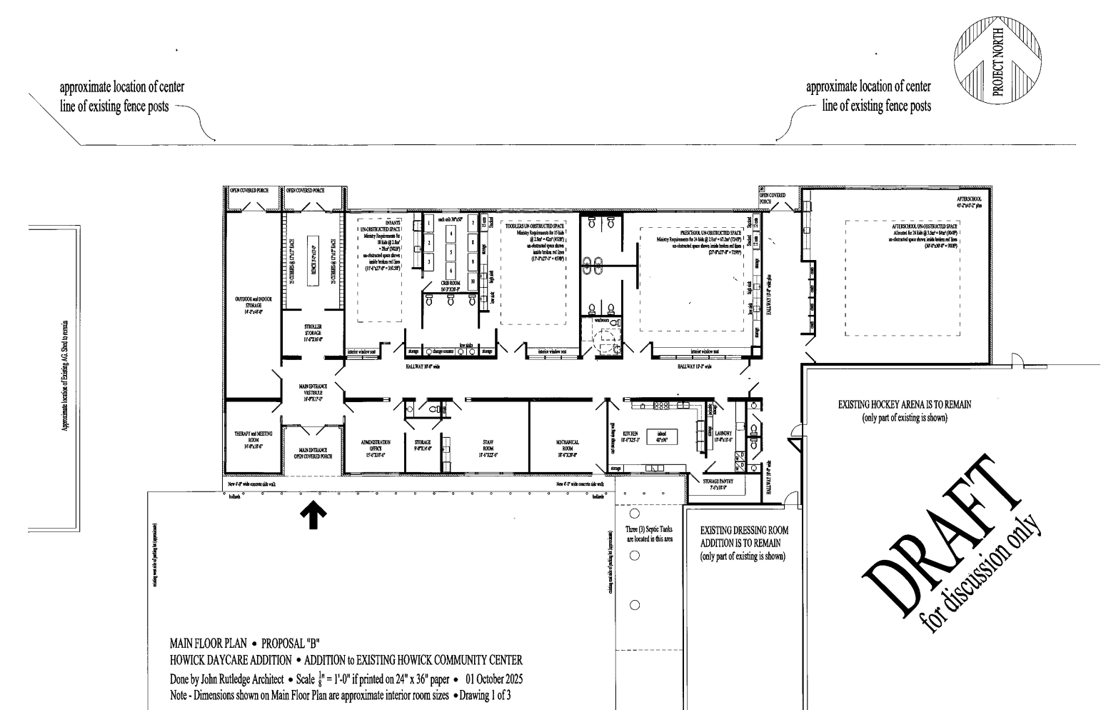
HOWICK – Township council endorsed construction of a licensed child care facility in Howick Township on Nov. 18. CAO/Clerk Caitlin Gillis told council at the recent meeting she had worked for months on gathering information, and ultimately came back with results showing access to affordable, high-quality childcare is wanted in the township after conducting a…
Howick endorses construction of day care facility


